Fontaine-André 1
Transformation d’un immeuble de logements
Rue de Fontaine-André 1, Neuchâtel
Maître de l’ouvrage: privé
2017-2020
Crédit photo: © Delphine Burtin
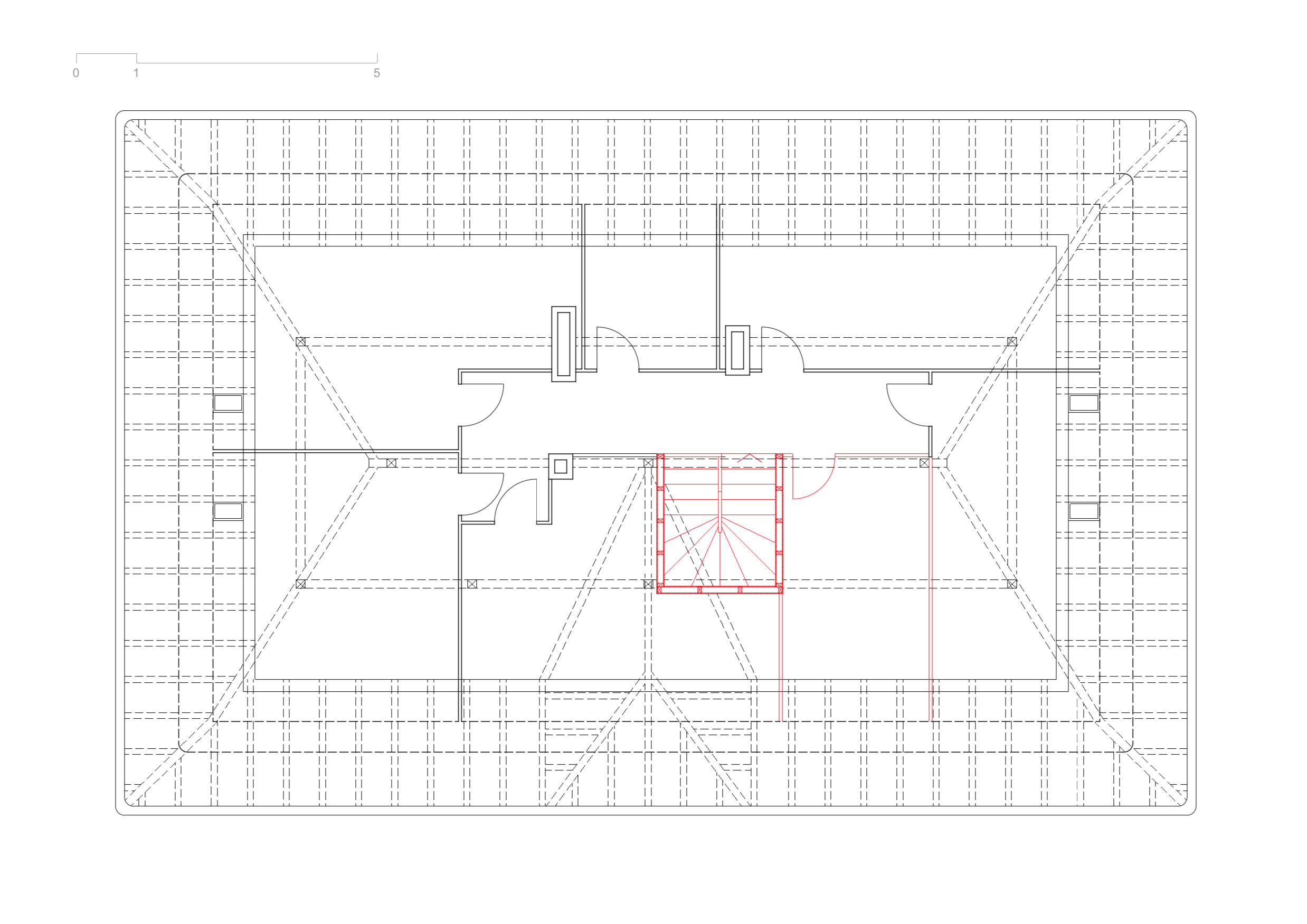
Cet immeuble de 6 logements datant des années 1920 est situé à Neuchâtel, sur un terrain en pente, entre les voies de chemin de fer en aval et la lisière de la forêt de Chaumont en amont.
L’immeuble se situe à cinq minutes à pied de la gare.
D’orientation principale sud, il offre une vue panoramique sur le lac et les alpes.
Le projet de rénovation intérieure cherche à mettre en valeur les qualités architecturales de l’origine du bâtiment, avec un maximum d’effets pour un minimum d’interventions: plan simple et efficace, armoires murales, parquets existants en pitchpin (pin des marais), boiseries dans toutes les pièces et couloirs, carreaux de ciment et logement mansardé.
Une grande attention a été portée à la qualité des matériaux ainsi qu’à la cohérence des couleurs.
A l’origine, l’immeuble comptait 5 logements et des chambres hautes.
La buanderie commune qui se situait à côté des chambres hautes a été déplacée au rez-de-chaussée inférieur, offrant la possibilité de créer un logement supplémentaire.
Les salles de bain d’origine étaient minuscules et en mauvais état. Elles ont été agrandies et entièrement équipées à neuf. Les cuisines existantes ont été rénovées et agencées.
L’usage de matériaux naturels et écologiques a été recherché, chaque fois que cela était possible.
De l’isolation en fibre de cellulose a été insufflée derrière les boiseries d’ancadrement des fenêtres et contre-coeurs, dans les planchers des étages et dans la mansarde. Des peintures sans solvants ont été appliquées aussi bien dans les logements que les espaces communs.
Dans les couloirs desservant les différentes pièces, les carreaux de ciment d’origine avaient presque tous été recouverts d’un carrelage lors d’une rénovation dans les années 1970. Contenant de l’amiante, les carrelages ont été retirés et remplacés par un linoleum bleu.
Les réseaux de chauffage, ventilation, sanitaire et électricité ont été entièrement remplacés.
En façade, les fenêtres en PVC existantes ont toutes été remplacées par des fenêtres en bois-métal.
Le rez-de-chaussée commercial n’a pas été touché par la rénovation.
Transformation d’un immeuble de logements
Rue de Fontaine-André 1, Neuchâtel
Maître de l’ouvrage: privé
2017-2020
Crédit photo: © Delphine Burtin
Cet immeuble de 6 logements datant des années 1920 est situé à Neuchâtel, sur un terrain en pente, entre les voies de chemin de fer en aval et la lisière de la forêt de Chaumont en amont.
L’immeuble se situe à cinq minutes à pied de la gare.
D’orientation principale sud, il offre une vue panoramique sur le lac et les alpes.
Le projet de rénovation intérieure cherche à mettre en valeur les qualités architecturales de l’origine du bâtiment, avec un maximum d’effets pour un minimum d’interventions: plan simple et efficace, armoires murales, parquets existants en pitchpin (pin des marais), boiseries dans toutes les pièces et couloirs, carreaux de ciment et logement mansardé.
Une grande attention a été portée à la qualité des matériaux ainsi qu’à la cohérence des couleurs.
A l’origine, l’immeuble comptait 5 logements et des chambres hautes.
La buanderie commune qui se situait à côté des chambres hautes a été déplacée au rez-de-chaussée inférieur, offrant la possibilité de créer un logement supplémentaire.
Les salles de bain d’origine étaient minuscules et en mauvais état. Elles ont été agrandies et entièrement équipées à neuf. Les cuisines existantes ont été rénovées et agencées.
L’usage de matériaux naturels et écologiques a été recherché, chaque fois que cela était possible.
De l’isolation en fibre de cellulose a été insufflée derrière les boiseries d’ancadrement des fenêtres et contre-coeurs, dans les planchers des étages et dans la mansarde. Des peintures sans solvants ont été appliquées aussi bien dans les logements que les espaces communs.
Dans les couloirs desservant les différentes pièces, les carreaux de ciment d’origine avaient presque tous été recouverts d’un carrelage lors d’une rénovation dans les années 1970. Contenant de l’amiante, les carrelages ont été retirés et remplacés par un linoleum bleu.
Les réseaux de chauffage, ventilation, sanitaire et électricité ont été entièrement remplacés.
En façade, les fenêtres en PVC existantes ont toutes été remplacées par des fenêtres en bois-métal.
Le rez-de-chaussée commercial n’a pas été touché par la rénovation.



























